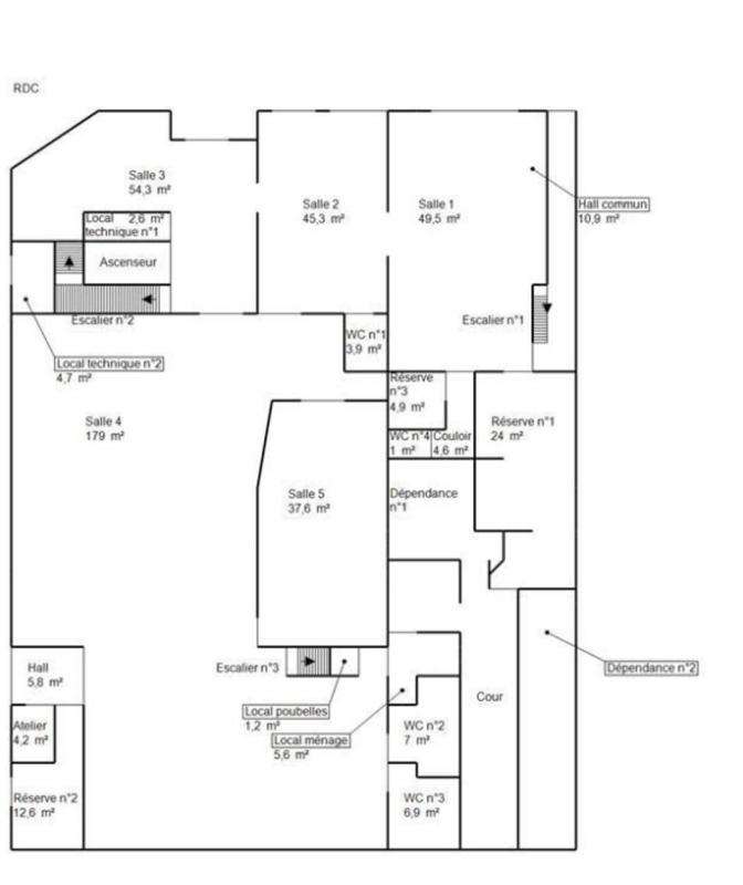
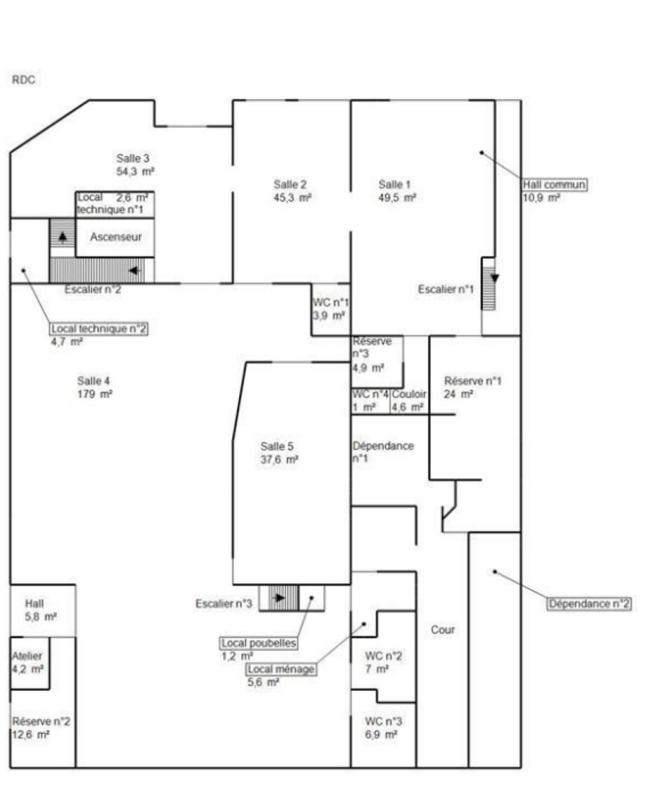
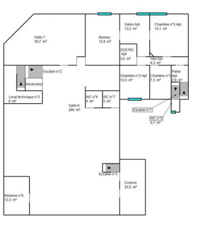
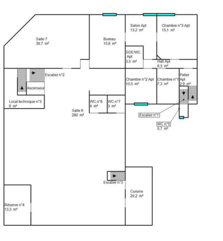
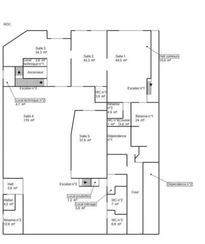
Vente Local commercial - 909 m² - Berck 62600
Référence : 807625Description :
Un immeuble d'une superficie de 909 m² à la vente bénéficiant d'un fort potentiel idéalement situé à Berck-sur-mer à proximité de la place et du centre-ville.
Projetez-vous dans la vie locale
Les quartiers
Les chiffres immo
Les agences
Les loisirs
- Commerce, alimentation
- Éducation, formation
- Solidarités, lien social
- Bien-être
- Mobilités
Nos experts vous font découvrir la ville comme si vous y étiez : vie de quartier, initiatives locales, espaces verts, activités... vous connaîtrez tout sur votre futur lieu de vie



















