Vente Bureau - 665 m² - Champs Sur Marne 77420
Référence : 808505Critères + :
Description :
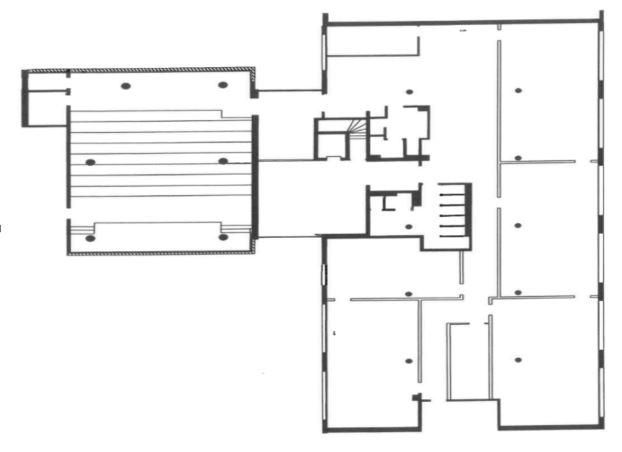
SERGIC IMMOBILIER TERTIAIRE ET COMMERCIAL vous propose dans un immeuble de standing, un plateau de bureaux/salle de cours et un amphithéâtre climatisé de 120 places en rez-de-chaussée avec 20 emplacements de parkings aériens. Normé PMR et ERP. Sanitaires privatifs. Des bureaux au coeur du centre d'affaires de Marne La Vallée et du Grand Paris. Dans un remarquable environnement boisé, le Parc Descartes Nobel accueille de nombreux établissements universitaires d'une architecture de haut niveau (école des Ponts et Chaussée, Ecole d'architecture, ESIEE...). Cette ambiance est propice à l'implantation d'entreprises dynamiques et innovantes souhaitant valoriser leur image. Accessible en voiture par l'autoroute A4, en RER A ou en bus, sa desserte sera encore renforcée par le Grand Paris Express, dont les futures lignes 15, 16 et le prolongement de la 11 auront un arrêt à la gare de Noisy-Champs. Desservie aujourd'hui par 6 lignes de bus de la RATP : 212, 213, 220, 312, 320 et 100. Le prix de vente s'entend en EUR HT hors frais de notaire et hors frais d'agence. Les honoraires d'agence : 5 % du prix de vente HT à la charge de l'Acquéreur. Pour de plus amples renseignements, merci de contacter SERGIC IMMOBILIER TERTIAIRE ET COMMERCIAL votre conseillère Sandra LEMAITRE au 06 85 19 88 95.
- Commerce, alimentation
- Éducation, formation
- Solidarités, lien social
- Bien-être
- Mobilités
Nos experts vous font découvrir la ville comme si vous y étiez : vie de quartier, initiatives locales, espaces verts, activités... vous connaîtrez tout sur votre futur lieu de vie



















