Vente T2 - 55 m² - Berck 62600
Référence : CTO861Critères + :
Description :
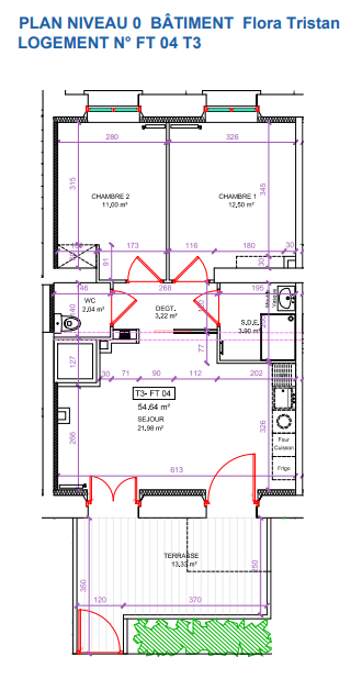
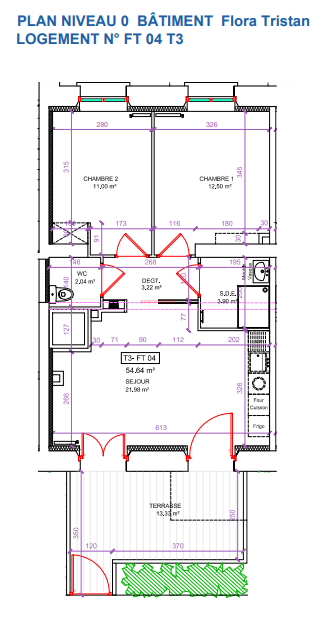
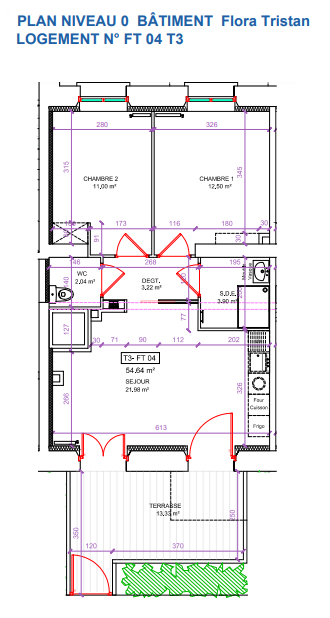
NOUVEAU A BERCK-SUR-MER : PROGRAMME FLORA TRISTAN Flora Tristan, bâtiment emblématique de Berck-sur-Mer, va être totalement remis à neuf. Il abritera des appartements neufs de type 72, T3, T4 et T5. Chaque logement disposera d'un extérieur et d'un stationnement privatif. Le bâtiment sera équipé d'un ascenseur et de tout le confort. L'architecture locale et typique sera conservée, seuls les balcons seront ajoutés. A proximité immédiate du centre-ville et à 100 mètres de la plage, l'accessibilité à pied est idéal. Livraison : 3ème trimestre 2026 T3 de 54,64 m² - Terrasse de 13,33 m² - Place de parking L'appartement comprend un séjour/cuisine de 21,98 m², deux chambres, une salle d'eau, W.C. séparé, terrasse. N'hésitez pas à nous contacter au 03.21.09.10.17 pour tout renseignement ! Copropriété de 19 lots - dont 19 lots habitation.(Pas de procédure en cours).
Bilan énergétique
Diagnostic de performance énergétique
Logement très performantIndice d'émission de gaz à effet de serre
Peu d'émissions de CO2Prix du bien
247 200 € ** Les honoraires sont à la charge du vendeur. Hors frais notariés, d'enregistrement et de publicité foncière
Bien soumis au statut de copropriété : Oui / mois
Nombre de lots de la copropriété : 19
Budget prévisionnel charge vendeur : Oui
Agence Sergic Berck/mer
62 RUE CARNOT
62600Berck
Tel. : 33 (0)3 21 09 10 17
4.5 / 5
EXCELLENT
- Commerce, alimentation
- Éducation, formation
- Solidarités, lien social
- Bien-être
- Mobilités
Nos experts vous font découvrir la ville comme si vous y étiez : vie de quartier, initiatives locales, espaces verts, activités... vous connaîtrez tout sur votre futur lieu de vie



















