Location Bureau - 292 m² - Lognes 77185
Référence : 806672_SEDescription :
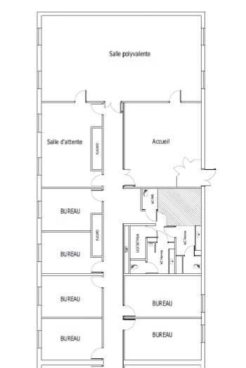
Dans un environnement paysagé et boisé, SERGIC ENTREPRISES vous propose à la location 292.70 m² de bureaux lumineux, cloisonnés situés en Rez-De-Chaussée avec une entrée privative, sanitaires privatifs. Les bureaux sont en cours de rénovation (peinture, électricité, changement de revêtement de sol). Ces bureaux sont à proximité des commerces et près du vieux Lognes. Accessible en voiture par l'autoroute A4, en RER A station Lognes ou en bus. Les conditions financières pour un bail commercial 3-6-9 ans : Loyer global forfaitaire annuel des bureaux (y compris charges, taxe foncière, taxe bureaux et électricité) : 67 860 EUR HT/an Dépôt de garantie : 3 mois de loyer forfaitaire annuel HT, Honoraires d'agence : 15 % du loyer forfaitaire annuel HT à la charge du Preneur, Régime Fiscal : TVA, Paiement par trimestre et d'avance, Indexation annuelle base indice ILAT. Pour de plus amples renseignements, merci de contacter SERGIC ENTREPRISES votre conseillère Sandra LEMAITRE au 06 85 19 88 95.
5 621 € HT-HC/mois
231 € HT-HC/m²/ an Honoraires preneur : 10 179 € HT
Agence Chennevieres-sur-marne
14 Avenue de Pince Vent
94430 Chennevières-sur-Marne
4.5 / 5
EXCELLENT
En cette forte période de location, soyez vigilants, des fraudeurs peuvent se faire passer pour votre agence SERGIC, en utilisant parfois même les photos et le texte de nos annonces. SERGIC ne vous demandera jamais, avant la signature du contrat de bail, le versement d’un acompte, d’arrhes ou de toutes autres sommes dans le but de réserver un bien. Et surtout pas via des moyens de paiement “alternatifs” comme des versements chez un buraliste. En cas de doute, n’hésitez pas à contacter votre agence.
- Commerce, alimentation
- Éducation, formation
- Solidarités, lien social
- Bien-être
- Mobilités
Nos experts vous font découvrir la ville comme si vous y étiez : vie de quartier, initiatives locales, espaces verts, activités... vous connaîtrez tout sur votre futur lieu de vie



















