Location Appartement ancien - 113 m² - Nancy 54000
Référence : 8056
Etage du bien : 2
Description :
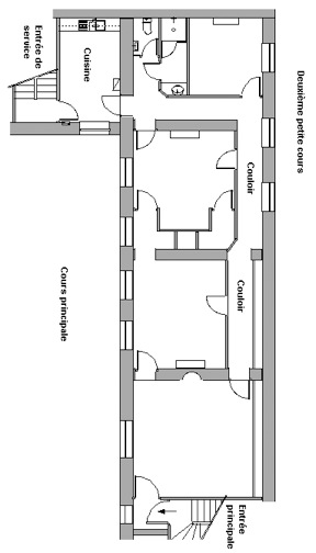
T3 RUE LAFAYETTE - SECTEUR VIEILLE VILLE, PROCHE PLACE SAINTE-EPVRE Dans un ancien hôtel particulier en très bon état général, très calme, de nombreux placards, parquet, cheminées, un salon, une salle-à-manger, une cusine aménagée, 2 chambres modernes et spacieuses, une salle d'eau avec douche et meuble vasque. Le chauffage est individuel au gaz. !! le plus : les honoraires de location sont limités à 2/3 d'un mois de loyer hors charges !! “Les informations sur les risques auxquels ce bien est exposé sont disponibles sur le site Géorisques : géorisques.gouv.fr/”
Bilan énergétique
Diagnostic de performance énergétique
Logement très performantIndice d'émission de gaz à effet de serre
Peu d'émissions de CO2Prix - charges comprises
1 000 €/moisDépot de garantie : 1140 €
Provision pour charges : 80,00 € (1)
Honoraires TTC charge locataire : 760 € (2)
1) Visite, dossier et bail : 419 €. Etat des lieux : 341 €
En cette forte période de location, soyez vigilants, des fraudeurs peuvent se faire passer pour votre agence SERGIC, en utilisant parfois même les photos et le texte de nos annonces. SERGIC ne vous demandera jamais, avant la signature du contrat de bail, le versement d’un acompte, d’arrhes ou de toutes autres sommes dans le but de réserver un bien. Et surtout pas via des moyens de paiement “alternatifs” comme des versements chez un buraliste. En cas de doute, n’hésitez pas à contacter votre agence.
- Commerce, alimentation
- Éducation, formation
- Solidarités, lien social
- Bien-être
- Mobilités
Nos experts vous font découvrir la ville comme si vous y étiez : vie de quartier, initiatives locales, espaces verts, activités... vous connaîtrez tout sur votre futur lieu de vie



















