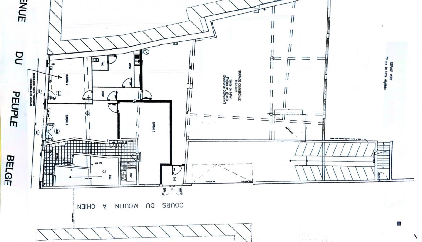
Vente Local commercial - 315 m² - Lille 59800
Référence : 792309_SEDescription :
SERGIC ENTREPRISES vous propose à la vente un local commercial en très bon état en rez de chaussée d'environ 315m² situés dans une résidence récente dans le Vieux Lille. A visiter !!!
Prix du bien
895 000 € ** Honoraires TTC inclus à la charge de l'acquéreur : 5 % du prix du bien hors honoraires. Prix du bien hors honoraires : 852380.95 €. Hors frais notariés, d'enregistrement et de publicité foncière
Bien soumis au statut de copropriété : Non
Budget prévisionnel charge vendeur : Non
Agence Sergic Wasquehal
6 rue Konrad Adenauer
59290Wasquehal
Tel. : 33 (0)3 20 12 50 12
4.5 / 5
EXCELLENT
- Commerce, alimentation
- Éducation, formation
- Solidarités, lien social
- Bien-être
- Mobilités
Nos experts vous font découvrir la ville comme si vous y étiez : vie de quartier, initiatives locales, espaces verts, activités... vous connaîtrez tout sur votre futur lieu de vie



















