Vente T3 - 61 m² - Vanves 92170
Référence : IDF52696
Etage du bien : 3
Critères + :
Description :
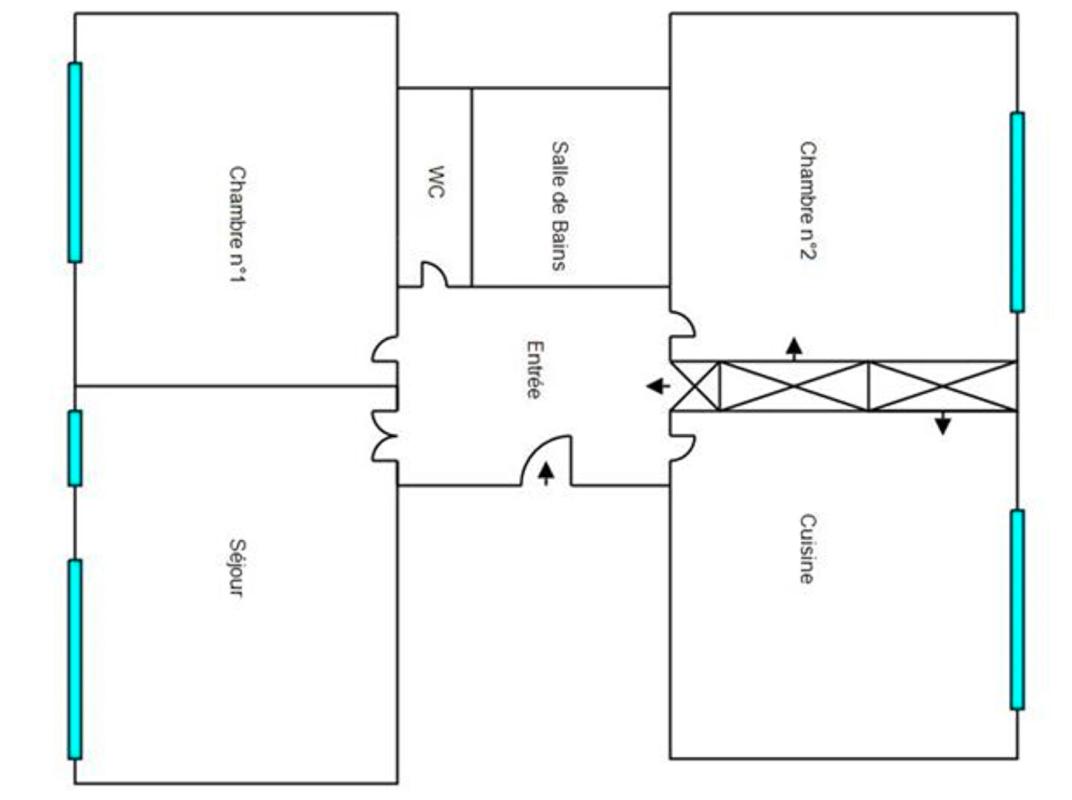
Votre agence SERGIC vous propose en exclusivité ce bel appartement de 3 pièces de 60,29 m² loi Carrez, situé au troisième étage sans ascenseur d'une résidence calme. Lumineux et traversant, il se compose d'un séjour agréable, de deux belles chambres, d'une cuisine indépendante, d'une salle de bains et de WC séparés. Une cave vient offrir des espaces de rangement supplémentaires, et un emplacement de parking complète ce bien. Idéalement situé, à proximité immédiate des commerces, des transports, des écoles et de toutes les commodités du quotidien. A visiter sans tarder ! Copropriété de 122 lots - dont 122 lots habitation. Charges annuelles : 3352 euros.
Bilan énergétique
Diagnostic de performance énergétique
Logement très performantIndice d'émission de gaz à effet de serre
Peu d'émissions de CO2Prix du bien
330 000 € ** Les honoraires sont à la charge du vendeur. Hors frais notariés, d'enregistrement et de publicité foncière
Charges copropriété : 279.33 € / mois
Nombre de lots de la copropriété : 122
Budget prévisionnel charge vendeur : Oui
Agence Sergic Paris 14ème
24 Rue Raymond Losserand
75014Paris 14ème
Tel. : 33 (0)1 43 35 80 80
4.5 / 5
EXCELLENT
- Commerce, alimentation
- Éducation, formation
- Solidarités, lien social
- Bien-être
- Mobilités
Nos experts vous font découvrir la ville comme si vous y étiez : vie de quartier, initiatives locales, espaces verts, activités... vous connaîtrez tout sur votre futur lieu de vie



















